Hotline: 04834 95820

Büsumer Hochhaus

Am Kurpark 1
25761 Büsum

Genießen Sie den atemberaubenden Ausblick und bei gutem Wetter die traumhaften Sonnenuntergänge über der Nordsee.
Lassen sie Ihren Blick schweifen über die Dithmarscher Bucht und beobachten Sie die Krabbenkutter, Ausflugsdampfer und Segelschiffe die vorbeiziehen. Der Panoramablick ist einzigartig.
Das Büsumer Hochhaus grenzt unmittelbar an den Deich, den Büsumer Strand und den Kurpark an. Die Büsumer Gehstraße ist nur wenige Minuten entfernt.
Die Loggia ist Ihr persönlicher Strandkorb in dem Sie gesunde Seeluft und den traumhaften Meerblick genießen können.
Wir können Ihnen verschieden große Wohnungen in verschiedenen Stockwerken anbieten.

Dreiraumwohnung 6. Stock Objekt-Nr. 43-31

Details

Wohnfläche:63 m² / 3 Räume Etage/Geschoss:6 (Fahrstuhl vorhanden) Anzahl Personen:für bis zu 4 Personen Zustellbett möglich:ja Komfort:Gehobene Ausstattung Küche:ja (Einbauküche)
Einbauküche mit 4-Glaskeramik-Kochfeld, Backofen, Geschirrspüler, Kühlschrank mit separatem Gefrierfach, Mikrowelle, etc.
Wohnzimmer:Wohnzimmer mit großem Relaxsofa, Flachbild-TV und Essecke Schlafzimmer:1 Schlafraum mit Doppelbett (1,80 x 2 m) , Flachbild TV und Kleiderschrank, sowie 1 Schlafraum mit Kojenbett (ausziehbar auf 1,60x 2 m), Flachbild-TV und Kommode Bad:Duschbad mit WC (mit großer begehbarer Dusche) Internetzugang:WLAN vorhanden. Dies ist eine freiwillige Leistung. Es besteht kein Rechtsanspruch. Besonderheiten:Preise pro Übernachtung für 2 Personen, jede weitere Person + EUR 10 (max. 4 Personen). Direktlink zum Objekt

Beschreibung

Die Drei- Zimmer-Wohnung (63 qm) liegt im 6.Obergeschoss des Hochhauses direkt im Kurviertel und nur wenige Gehminuten von der neuen Familienlagune entfernt.

Zur Ausstattung gehören: Ein Wohnraum mit einer großen Relaxcouch, Beistelltisch, Servierwagen, Sideboard, Kabel-TV und eine Hifi-Kompakt-Anlage, Vitrine und ein Essbereich.

Ein Schlafraum verfügt über ein Doppelbett (1,80 x 2 m) mit Nachtschränken, großem Kleiderschrank und Spiegel sowie Kabel-TV.
Der andere Schlafraum ist mit einem Kojenbett (1,60 x 2 m), Nachttisch, Kommode und Kabel-TV ausgestattet.

Im Flur stehen ein großer Einbauschrank, Spiegel sowie eine Kommode zur Verfügung.

Die Einbauküche ist komplett eingerichtet mit Geschirrspüler, Herd, Backofen, Kühlschrank, separatem Gefrierfach, Kaffeemaschine, Toaster,
Wasserkocher, Mikrowelle und Hausrat für den täglichen Bedarf.

Das Badezimmer ist mit Waschtisch und zwei großen Schubladen, großem Spiegelschrank, begehbarer Dusche, Fön, Kosmetikspiegel und WC eingerichtet.

Die Wohnung verfügt über einen Balkon mit zwei Klappstühlen, zwei Hochlehnerstühlen und einem Bistrotisch.

Das Haus verfügt über einen Fahrstuhl. Am Haus steht Ihnen ein Kfz-Stellplatz zur Verfügung. Für unsere kleinen Gäste steht auf Wunsch ein Kinderreisebett zur Verfügung.

Preise pro Übernachtung für 2 Personen, jede weitere Person + EUR 10 (max. 4 Personen).

Bettwäsche und Handtücher können Sie zum Preis von 23 Euro/Pers. von uns mieten (bei Wechsel zahlen Sie die gleiche Gebühr)

Bitte rauchen Sie nicht in der Wohnung. Auf dem Balkon ist das Rauchen gestattet.

Die Saisonvermietung mit Haustier ist laut Hausordnung untersagt.


https://www.buesum-ferienwohnung-kolb.de


Ferienwohnung Storm 3. Stock Zweiraumw.

Details

Wohnfläche:50 m² / 2 Räume Etage/Geschoss:3 (Fahrstuhl vorhanden) Anzahl Personen:für bis zu 4 Personen Zustellbett möglich:nein Komfort:Gehobene Ausstattung Küche:ja (separate Küche)
4-Zonen Cerankochfeld, Backofen, Geschirrspüler, Kühlschrank mit Eisfach
Wohnzimmer:Wohnzimmer mit Schlafcouch für 2 Personen, Flachbild-TV, Essplatz Schlafzimmer:Doppelbett und Kleiderschrank Bad:Duschbad mit WC (Duschbad) Internetzugang:WLAN Dies ist eine freiwillige Leistung. Es besteht kein Rechtsanspruch Direktlink zum Objekt

Beschreibung

Im 3. Stock liegt diese 50 qm große für bis zu 4 Personen ausgelegte Zweiraumwohnung.

Auf dem Balkon mit Meerblick können Sie herrlich entspannen. Genießen Sie die salzige Seeluft und schalten Sie einfach mal ab.

Der helle Wohnraum ist komfortabel eingerichtet mit einer Doppelschlafcouch, einem Flachbild-TV und einem Essplatz für 4 Personen.

Das Schlafzimmer bietet eine kleine Traumoase mit eingebautem Kleiderschrank mit viel Stauraum und einem Doppelbett.

Die Küche ist voll ausgestattet mit allem was Sie zum Kochen benötigen.

Das Bad ist hell und mit einer Runddusche, Waschbecken und WC eingerichtet.

Zum Haus gehören Fahrstuhl, PKW- Stellplatz und ein allgemeiner Fahrradabstellraum.

Bitte haben Sie Verständnis dafür, dass dies eine Nichtraucherwohnung ist. Die Saisonvermietung mit Haustier ist laut Hausordnung untersagt.

Bettwäsche und Handtücher erhalten Sie auf Wunsch zum Preis von 23 Euro/Pers. (bei Wechsel zahlen Sie die gleiche Gebühr).

W-Lan vorhanden. Dies ist eine freiwillige Leistung. Es besteht kein Rechtsanspruch.

Die Preise sind für 3 Personen berechnet.

Der Tagespreis erhöht jeweils um 3,00 Euro für jede weitere Person (Maximal 4)

WLAN vorhanden. Dies ist eine freiwillige Leistung. Es besteht kein Rechtsanspruch.

Ferienwohnung 18. Stock R 1

Details

Wohnfläche:50 m² / 1 Räume Etage/Geschoss:18 Anzahl Personen:für bis zu 2 Personen Zustellbett möglich:nein Komfort:Mittlere Ausstattung Küche:ja (Küche)
Herd mit Ceranfeld, Geschirrsp.,Mikrowelle, Kühlschrank mit Eisfach
Wohnzimmer:Wohn-/Schlafraum mit einer Appartementwand, 2 Sessel, Flachbild-TV, Radio, Essplatz Schlafzimmer:Ein kleiner vom Wohnraum abgetrennter Raum ist mit einem Etagenbett ausgestattet. Bad:Duschbad mit WC (Duschbad) Direktlink zum Objekt

Beschreibung

Unsere Ferienwohnung liegt im 18. Stock, hat eine Größe von ca. 50 qm und bietet Platz für bis zu 2 Personen.

Genießen Sie den Blick von Ihrem Balkon mit Meerblick
und seien sie einfach nur entspannt.

Zur Ausstattung gehören eine Küche mit kompletter Kücheneinrichtung, inkl. Mikrowelle und Geschirrspüler, ein hell gefliestes modernes Duschbad mit WC, sowie ein Wohnzimmer mit einer Appartementwand, Kabel-Farb-TV und einem Essbereich.

Ein kleiner vom Wohnraum abgetrennter Raum ist mit einem Etagenbett und einem Einbauschrank ausgestattet.

Zum Hause gehören Fahrstuhl, PKW-Stellplatz und ein allgemeiner Fahrradabstellraum.

Bitte haben Sie Verständnis dafür, dass dies eine Nichtraucherwohnung ist. Die Saisonvermietung mit Haustier ist laut Hausordnung untersagt.

Bettwäsche und Handtücher können Sie zum Preis von 23 Euro/Pers. von uns mieten (bei Wechsel zahlen Sie die gleiche Gebühr).





Ferienwohnung Dünenrose Zweiraumwohnung

Details

Wohnfläche:50 m² / 2 Räume Etage/Geschoss:1 (Fahrstuhl vorhanden) Anzahl Personen:für bis zu 3 Personen Zustellbett möglich:nein Komfort:Gehobene Ausstattung Küche:ja (separate Küche )
Geschirrspüler, 4-Zonen Cerankochfeld, Backofen, Mikrowelle, Kühlschrank mit Eisfach
Wohnzimmer:Wohn- /Schlafraum mit Schlafcouch, Flachbild-TV, Stereoanlage und Essplatz Schlafzimmer:Doppelbett und Kleiderschrank Bad:Duschbad mit WC (Duschbad) Internetzugang:WLAN Dies ist eine freiwillige Leistung. Es besteht kein Rechtsanspruch Direktlink zum Objekt

Beschreibung

Unsere komfortable Zweiraumwohnung liegt im 1.Stock hat eine Größe von 50 qm und bietet Platz für 2 - 3 Personen.

Genießen Sie schöne Sonnenstunden auf dem Balkon (Südseite) mit Blick auf den grünen Deich und über die Deichkrone hinweg auf die Nordsee und vorüberfahrende Schiffe.
Ebenso beeindruckend ist der Blick auf dem Schlafzimmerfenster (Westseite) auf das Farbenspiel bei untergehender Sonne.


Zur Ausstattung gehören Wohnzimmer mit Schlafcouch, Kabel-TV, Radio und Essplatz. Eine Küche mit kompletter Einrichtung, inkl. Geschirrspüler und ein Schlafzimmer mit Doppelbett.
Ein helles Duschbad ist natürlich auch vorhanden.

Bitte haben Sie Verständnis dafür, dass dies eine Nichtraucherwohnung ist. Die Saisonvermietung mit Haustier ist laut Hausordnung untersagt.

Zum Haus gehören Fahrstuhl und PKW-Stellplatz und ein allgemeiner Fahrradabstellraum.

Bettwäsche und Handtücher
können Sie zum Preis von 23 Euro/Pers. von uns mieten (bei Wechsel zahlen Sie die gleiche Gebühr).

WLAN vorhanden. Dies ist eine freiwillige Leistung. Es besteht kein Rechtsanspruch.

Ferienwohnung Sievers 1 1/2 Zimmerwohnung

Details

Wohnfläche:50 m² / 1 Räume Etage/Geschoss:10 (Fahrstuhl vorhanden) Anzahl Personen:für bis zu 3 Personen Zustellbett möglich:nein Komfort:Standardausstattung Küche:ja (separate Küche)
Geschirrspüler, Mikrowelle, 4-Zonen Cerankochfeld, Backofen, Kühlschrank mit Eisfach
Wohnzimmer:Wohn- / Schlafraum mit 2 Schrankbetten Schlafzimmer:kl. Raum mit Einzelbett (mit Vorhang vom Wohnzimmer abgetrennt) Bad:Duschbad mit WC (Duschbad) Direktlink zum Objekt

Beschreibung

Einraum-Ferienwohnung im 10. Stock. 50 qm Wohnfläche bieten Platz für bis zu 3 Personen.

Sonne pur und Nordseeblick können Sie von Ihrem Balkon aus erleben.

Zur Ausstattung gehören ein Wohnzimmer mit 2 Schrankbetten, Couchgarnitur, Flachbildfernseher und Essplatz, ein kl. Raum mit einem Einzelbett (ist nur durch einen Vorhang vom Wohnraum abgetrennt). Die Küche verfügt über eine komplette Ausstattung, inkl. Mikrowelle und Geschirrspüler,
Zum Haus gehören Fahrstuhl, PKW-Stellplatz und ein allgemeiner Fahrradabstellraum.
Preise pro Übernachtung für 2 Personen, je weitere Person + EUR 3,- (max. 3 Personen).

Bitte haben Sie Verständnis dafür, dass dies eine Nichtraucherwohnung ist. Die Saisonvermietung mit Haustier ist laut Hausordnung untersagt.

Bettwäsche und Handtücher können Sie zum Preis von 23 Euro/Pers. von uns leihen (bei Wechsel wird die gleiche Gebühr fällig).





Ferienwohnung Fechner, 15. Stock Einraumw.

Details

Wohnfläche:40 m² / 1 Räume Etage/Geschoss:15 (Fahrstuhl vorhanden) Anzahl Personen:für bis zu 2 Personen Zustellbett möglich:nein Komfort:Gehobene Ausstattung Küche:ja (separate Küche)
4-Zonen Cerankochfeld, Backofen, Kühlschrank mit Eisfach
Wohnzimmer:Wohn- Schlafraum mit Doppelschrankbett, Flachbild-TV, Ecksofa und Essplatz Bad:Duschbad mit WC (Duschbad) Internetzugang:WLAN Dies ist eine freiwillige Leistung. Es besteht kein Rechtsanspruch Direktlink zum Objekt

Beschreibung

Die Einraumwohnung für bis zu 2 Personen mit 40 qm liegt im 15. Stock.

Nehmen Sie Platz auf dem Balkon, der Meerblick wird Sie begeistern.

Zur Wohnung gehören eine voll ausgestattete Küche, der Wohnraum mit Appartementwand, Couchgarnitur und Kabel-TV, sowie Dusche/WC

Zum Haus gehören Fahrstuhl, PKW-Stellplatz und ein allgemeiner Fahrradabstellraum.

Bitte haben Sie Verständnis dafür, dass dies eine Nichtraucherwohnung ist. Die Saisonvermietung mit Haustier ist laut Hausordnung untersagt.

Bettwäsche und Handtücher können Sie zum Preis von 23 Euro/Pers. von uns mieten (bei Wechsel zahlen Sie die gleiche Gebühr).

WLAN vorhanden. Dies ist eine freiwillige Leistung. Es besteht kein Rechtsanspruch.


Ferienwohnung Sommer Nr. 51,

Details

Wohnfläche:46 m² / 1 Räume Etage/Geschoss:5 (Fahrstuhl vorhanden) Anzahl Personen:für bis zu 3 Personen Zustellbett möglich:nein Komfort:Standardausstattung Küche:ja (neue separate Küche)
4-Zonen Cerankochfeld, Backofen, Kühlschrank mit Eisfach
Wohnzimmer:Wohn- / Schlafraum mit feststehenden Doppelbett, Couchgarnitur, Flachbild-TV Schlafzimmer:kl. Raum mit Einzelbett Bad:Duschbad mit WC (Duschbad) Direktlink zum Objekt

Beschreibung

Die 1 1/2 Zimmerwohnung für bis zu 2 - 3 Personen mit 46 qm liegt im 5. Stock.

Nehmen Sie Platz auf ihrem Balkon und beobachten sie die vorbeiziehenden Schiffe am Horizont.

Zur Ausstattung gehören eine vollausgestattete Küche, Badezimmer mit Dusche und WC, Wohnraum mit Couchgarnitur, mit feststehenden Doppelbett und Fernseher, sowie ein kleines Schlafzimmer mit einem Einzelbett.

Zum Haus gehören Fahrstuhl, PKW-Stellplatz und ein allgemeiner Fahrradabstellraum.

Bettwäsche und Handtücher können zum Preis von 23 Euro/Pers. von uns gemietet werden (bei Wechsel zahlen Sie die gleiche Gebühr).

Preise pro Übernachtung für 2 Personen, je weitere Person + EUR 4,- (max. 3 Personen).



Ferienwohnung Nr. T3 im 21. Stock

Details

Wohnfläche:90 m² / 2 Räume Etage/Geschoss:21 (Fahrstuhl vorhanden) Anzahl Personen:für bis zu 4 Personen Zustellbett möglich:nein Komfort:Mittlere Ausstattung Küche:ja (separate Küche )
Geschirrspüler, Mikrowelle, 4-Zonen Cerankochfeld, Backofen, Essplatz für 2 Personen, Kühlschrank mit Eisfach
Wohnzimmer:Wohnzimmer mit Schlafcouch für 2 Personen, großer Esstisch, 2 Sessel mit Fußhocker, Flachbild-TV, Stereoanlage Schlafzimmer:Doppelbett und großer Kleiderschrank Bad:Vollbad mit WC und separater Dusche und separtes Gäste-WC (Vollbad mit Badewanne und Dusche, Doppelwaschbecken, WC und ein separates WC) Direktlink zum Objekt

Beschreibung

Wir laden Sie ein in unsere Penthouse-Wohnung im 21. Stock kennen zu lernen. Der Panoramablick mit Rundumsicht über Büsum und die Dithmarscher Bucht ist einzigartig.

Für bis zu
4 Personen stehen 90 hochwertig ausgestattete Quadratmeter zur Verfügung.

Das komfortable
Wohnzimmer mit großem Essbereich, ausziehbarer Couchgarnitur, gemütlichen Relaxsesseln, Flachbildfernseher, DVD-Player und Stereoanlage laden zu gemütlichen Abenden ein.

Die hochwertige
Küche ist komplett ausgestattet, inkl. Mikrowelle und Spülmaschine.

Gut schlafen werden Sie im Schlafzimmer mit Doppelbett und großem Kleiderschrank.

Das Badezimmer verfügt über Wanne, Dusche mit Regenbrause und Doppelwaschbecken. Ein separates Gäste-WC steht Ihnen ebenfalls zur Verfügung.

Genießen Sie das schöne Wetter auf der
Dachterasse.

Bitte haben Sie Verständnis dafür, dass dies eine Nichtraucherwohnung ist. Die Saisonvermietung mit Haustier ist laut Hausordnung untersagt.

Zum Haus gehören Fahrstuhl, PKW-Stellplatz und ein allgemeiner Fahrradabstellraum.

Bettwäsche und Handtücher erhalten Sie gegen eine Gebühr von 23 Euro/Person (bei Wechsel zahlen Sie die gleiche Leihgebühr).

Zweiraumwohnung 19. Stock, Nr. 194

Details

Wohnfläche:48 m² / 2 Räume Etage/Geschoss:19 (Fahrstuhl vorhanden) Anzahl Personen:für bis zu 2 Personen Zustellbett möglich:nein Komfort:Mittlere Ausstattung Küche:ja (separate Küche)
vollausgestattete Küche mit Geschirrspüler, 4-Zonen Induktionskochfeld, Backofen, Kühlschrank mit Eisfach
Wohnzimmer:Wohnzimmer mit Couchgarnitur, Flachbild-TV, Essplatz, Stereoanlage Schlafzimmer:Schlafzimmer mit Doppelbett Bad:Duschbad mit WC (Duschbad mit große Dusche) Internetzugang:WLAN Dies ist eine freiwillige Leistung. Es besteht kein Rechtsanspruch Direktlink zum Objekt

Beschreibung

Urlaub in der ersten Reihe!
Genießen Sie sich ein paar erholsame Tage am Meer und machen Sie Urlaub in unserer Zweiraumwohnung direkt am Kurpark 1.

Die
Zweiraumwohnung im 19. Stock bietet auf 48 qm genug Raum für 2 Personen, um einen entspannten Urlaub zu verbringen.

Auf der möblierten Loggia können Sie den Blick über die Nordsee schweifen lassen. Freuen Sie sich auf stimmungsvolle Abende mit grandiosen Sonnenuntergängen über dem Meer. Der Panoramablick ist einfach einzigartig. Im Wohnraumraum erwartet sie eine Couchgarnitur, die nach Bedarf auch als Schlafcouch genutzt werden kann, Kabel-TV und Essbereich.
Der Esstisch steht direkt vorm Fenster. Sie genießen schon beim Frühstück den Blick aufs Meer.

Die Küche, die über ein Touchscreen Induktionskochfeld mit vier Kochzonen und Backofen verfügt und mit allen nötigen Küchenutensilien inkl. Geschirrspüler ausgestattet ist, macht einen Restaurantbesuch überflüssig.

Das Bad ist funktional mit Dusche und WC ausgestattet und im Schlafzimmer lädt ein Doppelbett zum Träumen ein.

W-Lan vorhanden. Dies ist eine freiwillige Leistung. Es besteht kein Rechtsanspruch.

Bitte haben Sie Verständnis dafür, dass dies eine Nichtraucherwohnung ist. Die Saisonvermietung mit Haustier ist laut Hausordnung untersagt.

Zum Haus gehören Fahrstuhl, Pkw-Stellplatz und ein allgemeiner Fahrradabstellraum.

Bettwäsche und Handtücher erhalten Sie zum Preis von 23 Euro/Pers. von uns (bei Wechsel zahlen Sie die gleiche Gebühr).

Ferienwohnung am Meer 15. Stock

Details

Wohnfläche:53 m² / 2 Räume Etage/Geschoss:15 (Fahrstuhl vorhanden) Anzahl Personen:für bis zu 2 Personen Zustellbett möglich:nein Komfort:Gehobene Ausstattung Küche:ja (separate Küche)
3-Plattenherd, Backofen, Mikrowelle, Kühlschrank
Wohnzimmer:Wohnraum mit Couchgarnitur, Flachbild-TV und Essplatz Schlafzimmer:Doppelbett große Matratze Bad:Duschbad mit WC (Duschbad) Internetzugang:W-LAN Dies ist eine freiwillige Leistung. Es besteht kein Rechtsanspruch Direktlink zum Objekt

Beschreibung

Unsere behagliche Ferienwohnung befindet sich in der 15. Etage. Auf 53 qm können sich 2 Personen so richtig wohlfühlen.

Sie verfügen über ein Wohn-, Esszimmer mit Couchgarnitur (Schlafcouch), Fernseher mit Kabel-Anschluss und Radio mit CD-Player.

Die separate Küche ist mit allen nötigen Küchenuntensilien ausgestattet, inkl. Mikrowelle. Im Schlafzimmer steht Ihnen ein Doppelbett zur Verfügung.

Das Badezimmer ist hell gefliest und mit Dusche und WC funktional ausgestattet.

Die Loggia mit fast 6 qm ist Ihr "persönlicher Strandkorb" in dem sie die gesunde Seeluft und den Sonnenschein ungestört genießen können.

Zum Haus gehören Fahrstuhl, Parkplatz und ein allgemeiner Fahrradabstellraum.

W-Lan vorhanden. Dies ist eine freiwillige Leistung. Es besteht kein Rechtsanspruch.

Bitte haben Sie Verständnis dafür, dass dies eine Nichtraucherwohnung ist. Die Saisonvermietung mit Haustier ist laut Hausordnung untersagt.

Bettwäsche und Handtücher können Sie zum Preis von 23 Euro/Pers. von uns mieten (bei Wechsel zahlen SIe die gleiche Gebühr).



Ferienwohnung 157 (Zak) Einraumwohnung

Details

Wohnfläche:40 m² / 1 Räume Etage/Geschoss:15 (Fahrstuhl vorhanden) Anzahl Personen:für bis zu 2 Personen Zustellbett möglich:nein Komfort:Gehobene Ausstattung Küche:ja (separate Küche)
4-Zonen Cerankochfeld, Backofen, Kühlschrank mit Eisfach
Wohnzimmer:Wohn- /Schlafraum mit einer Appartementwand, Sofa, Flachbild-TV und Essplatz Bad:Duschbad mit WC (Duschbad) Direktlink zum Objekt

Beschreibung

Komfortabel eingerichtete Einraumwohnung im 15. Stock mit 40 qm für 2 Personen.

Lassen Sie sich begeistern von dem herrlichen Meerblick und genießen Sie schöne Stunden auf dem Balkon.

Zur Ausstattung gehören die Küche mit kompletter Kücheneinrichtung, ein Wohnraum mit Appartementwand, Couchgarnitur, Flachbildfernseher und Essplatz.

Das helle Badezimmer verfügt über Dusche und WC.

Zum Haus gehören Fahrstuhl, Pkw-Stellplatz und ein allgemeiner Fahrradabstellraum.

Bitte haben Sie Verständnis dafür, dass dies eine Nichtraucherwohnung ist. Die Saisonvermietung mit Haustier ist laut Hausordnung untersagt.

Bettwäsche und Handtücher können Sie zum Preis von 23 Euro/Pers. von uns mieten (bei Wechsel zahlen Sie die gleiche Gebühr).

Ferienwohnung Nr. 137 im 13. Stock

Details

Wohnfläche:40 m² / 1 Räume Etage/Geschoss:13 (Fahrstuhl vorhanden) Anzahl Personen:für bis zu 2 Personen Zustellbett möglich:nein Komfort:Gehobene Ausstattung Küche:ja (separate Küche)
4-Plattenherd, Backofen, Kühlschrank mit Eisfach
Wohnzimmer:Wohn- /Schlafraum mit einer Appartementwand, Sofa und Essplatz Bad:Vollbad mit WC (Badewanne) Direktlink zum Objekt

Beschreibung

Gemütlich eingerichtete Einzimmerwohnung im 13. Stock, ideal für zwei Personen mit einer Wohnfläche von 40 qm.
Genießen Sie den atemberaubenden Blick auf die Nordsee direkt von Ihrem Balkon.

Die Wohnung verfügt über eine Küche sowie einen Wohnbereich mit Couchgarnitur, Kabel-TV und einer Appartementwand.
Am Esstisch mit vier Stühlen können Sie bei einem ausgiebigen Frühstück den herrlichen Blick auf die Nordsee genießen.
Das Badezimmer ist mit einer Badewanne und einem WC ausgestattet.

Zum Haus gehören zudem ein Fahrstuhl, ein Pkw-Stellplatz sowie ein gemeinsamer Fahrradabstellraum.

Bitte haben Sie Verständnis dafür, dass dies eine Nichtraucherwohnung ist.
Die Saisonvermietung mit Haustier ist laut Hausordnung untersagt.
Bettwäsche und Handtücher können Sie zum Preis von 23 Euro/Pers. von uns mieten (bei Wechsel zahlen Sie die gleiche Gebühr).

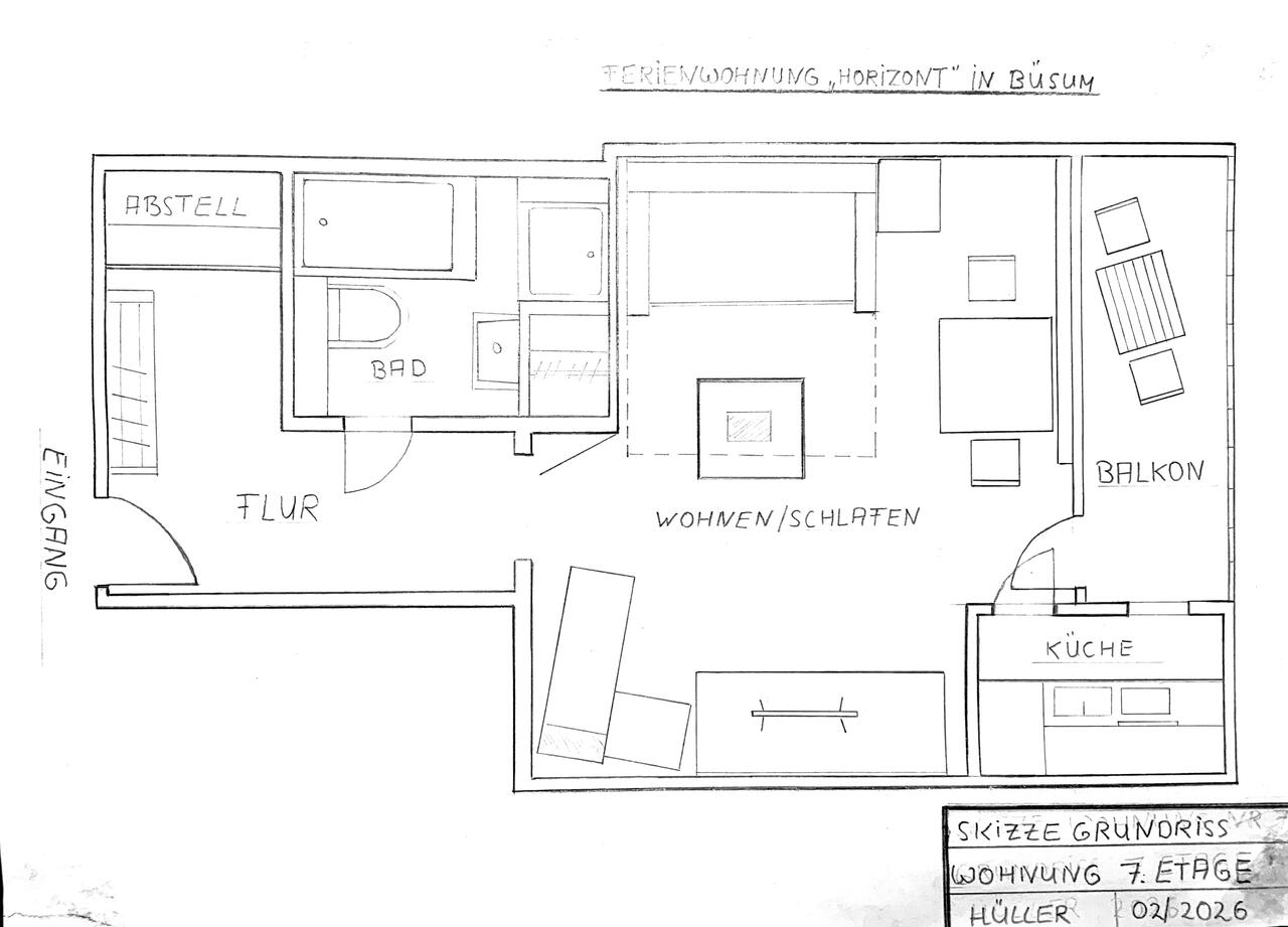
Ferienwohnung Horizont Nr. 77

Details

Wohnfläche:40 m² / 1 Räume Etage/Geschoss:7 (Fahrstuhl vorhanden) Anzahl Personen:für bis zu 2 Personen Zustellbett möglich:nein Komfort:Gehobene Ausstattung Küche:ja (separate Küche)
4-Zonen Cerankochfeld, Backofen, Spülmaschine, Kühlschrank mit Eisfach,
Wohnzimmer:Wohnzimmer mit Schlafsofa (mit Matratze 160 x 200 cm) für 2 Personen, Smart-Wlan-TV, Essplatz Bad:Vollbad mit WC (neues Badzimmer mit Badewanne und Dusche) Internetzugang:W-Lan vorhanden. Die ist eine freiwillige Leistung. Es besteht kein Rechtsanspruch. Besonderheiten:Waschmaschine (freiwillige Leistung) Direktlink zum Objekt

Beschreibung

Die Wohnung am Kurpark 1 für 2 Personen (40 qm) liegt im 7. Stock.
Nehmen Sie Platz auf dem Balkon und genießen Sie den Meerblick.

Zur Ausstattung gehören Küche mit kompletter Kücheneinrichtung, Wohn-, Schlafraum mit einem Schlafsofa (mit Matratze 160 x 200 cm) für 2 Personen, Flachbildfernseher (Smart-Wlan-TV) und einem Essplatz. Badezimmer mit Badewanne und Dusche und WC.
Zum Hause gehören Fahrstuhl, Pkw-Stellplatz. Allgemeiner Fahrradabstellraum.

Bitte haben Sie Verständnis dafür, dass dies eine Nichtraucherwohnung ist. Die Saisonvermietung mit Haustier ist laut Hausordnung untersagt.

Bettwäsche und Handtücher können Sie zum Preis von 23 Euro/Pers. von uns mieten (bei Wechsel zahlen Sie die gleiche Gebühr).

W-Lan vorhanden. Dies ist eine freiwillige Leistung. Es besteht kein Rechtsanspruch.

In der 22. Etage befindet sich eine große Dachterrasse mit einem atemberaubenden Blick in die Ferne. Hier finden Sie auch einen Freizeitraum , in dem man mit Tischtennis spielen kann.

Der Strand mit der Familienlagune sowie der grüne Deich liegen direkt vor dem Hochhaus. In der Lagune können Sie unabhängig von den Gezeiten in der Nordsee baden oder in einem der zahlreichen Strandkörbe entspannen.

Das Zentrum mit seiner wunderschönen neugestalteten Fußgängerzone und der Hafen mit seinen zahlreichen Krabbenkuttern sind nur wenige Gehminuten entfernt. Hier finden Sie zahlreiche Einkaufsmöglichkeiten zum Shoppen und Restaurants mit kulinarischen regionalen Köstlichkeiten.

Ferienwohnung 17. Stock , Brahm

Details

Wohnfläche:48 m² / 2 Räume Etage/Geschoss:17 (Fahrstuhl vorhanden) Anzahl Personen:für bis zu 2 Personen Zustellbett möglich:nein Komfort:Mittlere Ausstattung Küche:ja (separate Küche)
Geschirrspüler, Mikrowelle, Backofen, Kühlschrank mit Eisfach
Wohnzimmer:Wohnzimmer mit Schlafcouch, Flachbild-TV, Stereoanlage, Essplatz Schlafzimmer:Doppelbett (180 x 200 cm) und Kleiderschrank Bad:Duschbad mit WC (Duschbad) Direktlink zum Objekt

Beschreibung

Die Wohnung am Kurpark 1, für 2 Personen mit 48 qm Wohnfläche liegt im 17. Stock.

Lassen
sie die Seele baumeln und genießen Sie herrliche Stunden auf dem Balkon mit Meerblick.

Zur Ausstattung der Wohnung gehören eine voll ausgestattete Küche, ein Wohnbereich mit einer Couchgarnitur, Flachbild- TV und einem Essplatz. Das Schlafzimmer verfügt über ein Boxspringbett und das Badezimmer ist mit Dusche und WC ausgestattet.

Zum Hause gehören ein Fahrstuhl, ein PKW-Stellplatz sowie ein allgemeiner Fahrradabstellraum.


Bitte haben Sie Verständnis dafür, dass dies eine Nichtraucherwohnung ist. Die Saisonvermietung mit Haustier ist laut Hausordnung untersagt.

Bettwäsche und Handtücher erhalten Sie zum Preis von 23 Euro/Pers. (bei Wechsel zahlen Sie die gleiche Gebühr).

Ferienwohnung 115 im 11. Stock, v.Drathen

Details

Wohnfläche:45 m² / 2 Räume Etage/Geschoss:11 (Fahrstuhl vorhanden) Anzahl Personen:für bis zu 2 Personen Zustellbett möglich:nein Komfort:Mittlere Ausstattung Küche:ja (separate Küche)
4-Zonen Cerankochfeld, Backofen, Kühlschrank mit Eisfach
Wohnzimmer:Wohnzimmer mit Couchgarnitur, die bei Bedarf als Schlafcouch genutzt werden darf, Flachbild-TV, Stereoanlage, Essplatz Schlafzimmer:Doppelbett (1,80 x 1,90) Bad:Duschbad mit WC (Duschbad) Direktlink zum Objekt

Beschreibung

Genießen Sie Ihren Urlaub in unserer Zweiraumwohnung im 11. Stock. 45 qm stehen bis zu 2 Personen zur Verfügung.

Nehmen Sie Platz auf Ihrem Balkon und genießen Sie den Ausblick auf die See
.

Zur Ausstattung gehören die voll ausgestattete Küche, der Wohnbereich mit Couchgarnitur, Kabel- TV und Essplatz sowie Dusche/WC und ein Schlafzimmer mit Doppelbett.

Zum Haus gehören Fahrstuhl, Pkw-Stellplatz und ein allgemeiner Fahrradabstellraum. Bitte rauchen sie nicht in der Ferienwohnung, die Nachmieter werden es ihnen danken. Auf dem Balkon ist Rauchen selbstverständlich erlaubt.

Die Saisonvermietung mit Haustier ist laut Hausordnung untersagt.
Bettwäsche und Handtücher können Sie zum Preis von 23 Euro/Pers. von uns mieten (bei Wechsel zahlen Sie die gleiche Gebühr).



Einraumwohnung Nr. 147 im 14. Stock

Details

Wohnfläche:40 m² / 1 Räume Etage/Geschoss:14 (Fahrstuhl vorhanden) Anzahl Personen:für bis zu 2 Personen Zustellbett möglich:nein Komfort:Standardausstattung Küche:ja (separate Küche)
4-Plattenherd, Backofen, Kühlschrank mit Eisfach
Wohnzimmer:Wohn- / Schlafraum mit einer Appartementwand, Sofa,Flachbild-TV Bad:Duschbad mit WC (Duschbad) Direktlink zum Objekt

Beschreibung

Genießen Sie Ihren Urlaub in unserer Einraumwohnung direkt am Kurpark 1.

Die Wohnung liegt im 14. Stock, hat eine Größe von ca. 40 qm und bietet Platz für 2 Personen.

Auf dem Balkon mit Meerblick können Sie herrlich entspannen.

Zur Ausstattung gehören eine Küche mit kompletter Einrichtung. Ein Wohnzimmer mit Couchgarnitur, einer Appartementwand, Kabel- TV und Essbereich, sowie ein Badezimmer mit Dusche und WC.

Bitte haben Sie Verständnis dafür, dass dies eine Nichtraucherwohnung ist. Die Saisonvermietung mit Haustier ist laut Hausordnung untersagt.

Zum Haus gehören ein Fahrstuhl, ein Pkw-Stellplatz und ein allgemeiner Fahrradabstellraum.

Bettwäsche und Handtücher können Sie zum Preis von 23 Euro/Pers. von uns mieten (bei Wechsel zahlen Sie die gleiche Gebühr).



Ferienwohnung Schäfchen

Details

Wohnfläche:52 m² / 2 Räume Anzahl Personen:für bis zu 4 Personen Zustellbett möglich:nein Komfort:Mittlere Ausstattung Küche:ja (separate Küche)
4-Plattenherd, Kühlschrank mit Eisfach und Geschirrspüler
Wohnzimmer:Wohnzimmer mit Schlafcouch, Flachbild-TV, Essplatz Schlafzimmer:Doppelbett Bad:Duschbad mit WC (Duschbad) Direktlink zum Objekt

Beschreibung

Ein Urlaub in Büsum ist zu jeder Jahreszeit erholsam: hier lassen sich Naturschauspiele wie Ebbe und Flut, aufbrausende Stürme und idyllische Ruhe direkt miterleben. Der Strand und das Meer befinden sich in unmittelbarer Nähe. An kälteren Tagen bietet das in der Nähe gelegene Meerwasser–Wellenbad mit großem Saunabereich Erholung und Entspannung.

Ihr helles und freundliches Appartement befindet sich im Hochparterre unmittelbar hinter dem Deich und in direkter Nachbarschaft zum Kurpark und zur Familienlagune. Das Wohnzimmer ist ausgestattet mit einer gemütlichen Couchgarnitur, die nach Bedarf auch als Schlafcouch für zwei Personen genutzt werden kann und einem Esstisch mit vier Stühlen. Im Schlafzimmer steht ein bequemes Doppelbett. Der Südbalkon lädt zum gemütlichen Verweilen ein.

Sie möchten nicht auswärts essen? Kein Problem, in der Küche finden Sie alle nötigen Küchengeräte und genügend Geschirr um sich selbst zu versorgen. (4-Plattenherd, Einbauküche, Kaffeemaschine, Kühlschrank, Toaster, Wasserkocher und Geschirrspüler). Das Bad ist neu mit Duschkabine und WC. Ein Pkw Stellplatz gehört ebenfalls zu dieser Wohnung. Bitte haben Sie dafür Verständnis, dass wir keine Haustiere aufnehmen und dass die Wohnung Nichtrauchern vorbehalten ist.

Ferienwohnung 198 Puls im 19. Stock

Details

Wohnfläche:40 m² / 1 Räume Etage/Geschoss:19 (Fahrstuhl vorhanden) Anzahl Personen:für bis zu 2 Personen Zustellbett möglich:nein Komfort:Mittlere Ausstattung Küche:ja (separate Küche)
4-Zonen Cerankochfeld, Backofen, Mikrowelle, Kühlschrank mit Eisfach
Wohnzimmer:Schrankbetten, Flachbild-TV, 2 Sessel, Essplatz Bad:Duschbad mit WC (Duschbad) Direktlink zum Objekt

Beschreibung

Sie möchten bei Sonnenuntergängen in der ersten Reihe sitzen? - Na dann los!

Dafür haben wir unsere gemütliche Wohnung in Süd- West- Lage für Sie ausgestattet und glauben, dass Sie sich wohlfühlen werden.

Die Einraumwohnung für 2 Personen mit 40 qm Wohnfläche liegt im 19. Stock.
Starten Sie Ihren Urlaubstag bei einem schönen Frühstück auf dem Balkon und genießen den Meerblick.

Zur Ausstattung gehören Flur, Dusche/WC, separate, gut ausgestattete Küche.
(inkl.Mikrowelle) mit einer ebenfalls schönen Aussicht und unser Wohn-Schlafzimmer mit Essplatz, Fernseher, Stereoanlage und
Sitzgruppe mit weitem Panoramablick auf die Nordsee.
Zum Haus gehören Fahrstuhl, Pkw-Stellplatz und ein allgemeiner Fahrradabstellraum.

Bitte haben Sie Verständnis dafür, dass dies eine Nichtraucherwohnung ist. Die Saisonvermietung mit Haustier ist laut Hausordnung untersagt.

Bettwäsche und Handtücher erhalten Sie gegen eine Gebühr von 23 Euro/Person (bei Wechsel zahlen Sie die gleiche Leihgebühr)

Ferienwohnung 193, 19. Stock

Details

Wohnfläche:54 m² / 2 Räume Etage/Geschoss:19 (Fahrstuhl vorhanden) Anzahl Personen:für bis zu 2 Personen Zustellbett möglich:nein Komfort:Mittlere Ausstattung Küche:ja (separate Küche )
4-Plattenherd, Backofen, Kühlschrank mit EIsfach
Wohnzimmer:Wohnzimmer mit Couchgarnitur, 2 Sessel, Flachbild-TV, Essplatz, Stereoanlage Schlafzimmer:Schlafzimmer mit Doppelbett Bad:Duschbad mit WC (Duschbad) Internetzugang:WLAN Dies ist eine freiwillige Leistung. Es besteht kein Rechtsanspruch Direktlink zum Objekt

Beschreibung

Genießen Sie Ihren Urlaub in unserer behaglich eingerichteten Zweiraumwohnung im 19. Stock. 54 qm stehen bis zu 2 Personen zur Verfügung.

Nehmen Sie Platz auf Ihrem Balkon und genießen Sie den Ausblick auf die See
.

Zur Ausstattung gehören die voll ausgestattete Küche, der Wohnbereich mit Couchgarnitur, Kabel- TV und Essplatz sowie Dusche/WC und ein Schlafzimmer mit Doppelbett.

Zum Haus gehören Fahrstuhl, Pkw-Stellplatz und ein allgemeiner Fahrradabstellraum.

Bitte haben Sie Verständnis dafür, dass dies eine Nichtraucherwohnung ist. Die Saisonvermietung mit Haustier ist laut Hausordnung untersagt.

Bettwäsche und Handtücher können Sie zum Preis von 23 Euro/Pers. von uns mieten (bei Wechsel zahlen Sie die gleiche Gebühr).

Ferienwohnung Watt´n Blick Nr. 94

Details

Wohnfläche:52 m² / 2 Räume Anzahl Personen:für bis zu 2 Personen Zustellbett möglich:nein Komfort:Mittlere Ausstattung Küche:ja (separate Küche)
vollausgestattete Küche mit Geschirrspüler, Cerankochfeld, Backofen, Kühlschrank mit Eisfach
Wohnzimmer:Wohnzimmer mit Couchgarnitur, Flachbildfernseher, Essplatz Schlafzimmer:Doppelbett, Kleiderschrank und Schreibtisch Bad:Vollbad mit WC (Wannenbad) Direktlink zum Objekt

Beschreibung

Genießen Sie Ihren Urlaub in unserer gemütlichen eingerichteten Zweiraumwohnung im 9. Stock. 52 qm stehen bis zu 2 Personen zur Verfügung.

Nehmen Sie Platz auf Ihrem Balkon und genießen Sie den einmaligen Ausblick auf die Nordsee.
.

Zur Ausstattung gehören die voll ausgestattete Küche, der Wohnbereich mit Couchgarnitur, Kabel- TV und Essplatz sowie Bad/WC und ein Schlafzimmer mit Doppelbett.

Zum Haus gehören Fahrstuhl, Pkw-Stellplatz und ein allgemeiner Fahrradabstellraum.

Bettwäsche und Handtücher können Sie zum Preis von 23 Euro/Pers. von uns mieten (bei Wechsel zahlen Sie die gleiche Gebühr).

Bitte haben Sie Verständnis dafür, dass dies eine Nichtraucherwohnung ist. Die Saisonvermietung mit Haustier ist laut Hausordnung untersagt.

Ferienwohnung Nr. 176

Details

Wohnfläche:43 m² / 1 Räume Etage/Geschoss:17 (Fahrstuhl vorhanden) Anzahl Personen:für bis zu 2 Personen Zustellbett möglich:nein Komfort:Gehobene Ausstattung Küche:ja (separate Küche)
Ceran Kochfeld, Backofen, Geschirrspüler, Kühlschrank
Wohnzimmer:Wohn- /Schlafraum mit feststehenden Doppelbett, 2 Sesseln, Flachbild-TV und Essplatz Bad:Vollbad mit WC (Wannenbad) Internetzugang:W-LAN Dies ist eine freiwillige Leistung. Es besteht kein Rechtsanspruch Direktlink zum Objekt

Beschreibung

Traumblick über die Nordsee in diesem Einraum-Appartement im 17. Stock können Sie etwas Besonderes erleben:

Schon beim Frühstück genießen Sie den atemberaubenden Ausblick auf die Lagune und die Nordsee.

Nach einem interessanten Urlaubstag in Büsum beginnt auf dem Balkon Ihres Appartements der zweite wunderschöne Teil des Tages. In der milden Abendsonne können Sie das Farbenspiel des Sonnenuntergangs beobachten. Die Farbkombinationen zwischen intensivem hellblau des Himmels und leuchtendem orange bis tiefrot, die Wolken, ziehen an Ihnen vorbei. Hier können Sie ihre Seele baumeln lassen. Durch den Wechsel von Ebbe und Flut bietet sich jeden Abend ein neues Farbenspiel. Wunderschön wird auch die Stunde nach Sonnenuntergang, wenn die Wolken zu leuchten beginnen.

Das Einraum - Das Appartement im 17. Stock besitzt eine sehr angenehme Atmosphäre durch freundliche Farben. Das Appartement ist für Allergiker geeignet (Fußboden, Kopfkissen, Bettdecken und Matratzen sind allergikerfreundlich).

Ein heller Wohn-/Schlafraum mit feststehendem Bett, Flachbild-TV, 2 Sesseln und Essplatz lassen Sie sicher gut erholen.

In der Küche finden Sie alles was Sie zum Kochen benötigen.

EIn Badezimmer mit Badewanne und WC ist ebenfalls vorhanden.

W-Lan vorhanden. Dies ist eine freiwillige Leistung. Es besteht kein Rechtsanspruch.

Zusätzlich zum Appartement steht Ihnen noch eine Dachterrasse zur Verfügung, von der aus Sie einen Panoramablick über Büsum und Meer haben.
Nichtraucherwohnung.
Haustiere sind nicht gestattet.

Ferienwohnung Nr. 26

Details

Wohnfläche:41 m² / 1 Räume Etage/Geschoss:2 (Fahrstuhl vorhanden) Anzahl Personen:für bis zu 2 Personen Zustellbett möglich:nein Komfort:Gehobene Ausstattung Küche:ja (Kochnische)
Küchenzeile mit Geschirrspüler, Kombibackofen mit Mikrowelle, Geschirr, Besteck, Kühlschrank mit Eisfach
Wohnzimmer:Doppelbett, Schlafsofa, Flat-TV, Essplatz Bad:Duschbad mit WC (Duschbad) Direktlink zum Objekt

Beschreibung

Fühlen Sie sich wie Zuhause in unserer komfortablen 1-Raumwohnung im 2. OG. Wachen Sie morgens auf und blicken Sie direkt vom Bett aus auf das Meer. Genießen Sie Ihr Frühstück am Essplatz neben der offenen Küche. Diese ist ausgestattet mit einem 2-Platten-Cerankochfeld mit Sensor-Touch, einem Backofen, sowie ein Geschirrspüler.

Entspannen Sie auf der Sofalandschaft bei einem lustigen oder romantischen Film auf dem Flat-TV. Das Bad ist hell und freundlich mit einer Duschkabine, WC und Waschbecken ausgestattet. Auf dem Balkon mit Blick auf dem Deich und das Meer können Sie am Abend die traumhaften Sonnenuntergänge beobachten.

Bitte haben Sie Verständnis dafür, dass dies eine Nichtraucherwohnung ist.

Die Saisonvermietung mit Haustier ist laut Hausordnung untersagt.

Zum Hause gehören Fahrstuhl, Pkw-Stellplatz. Allgemeiner Fahrradabstellraum.

Bettwäsche und Handtücher erhalten Sie gegen eine Gebühr von 23 Euro/Person (bei Wechsel zahlen Sie die gleiche Leihgebühr)



Dreiraumwohnung Nr. 190 im 19. Stock

Details

Wohnfläche:63 m² / 3 Räume Etage/Geschoss:19 (Fahrstuhl vorhanden) Anzahl Personen:für bis zu 4 Personen Zustellbett möglich:nein Komfort:Gehobene Ausstattung Küche:ja (Einbauküche)
vollausgestattete Einbauküche mit Geschirrspüler, Waschmaschine und Trockner, Backofen, Kühlschrank mit Gefrierfach, Mikrowelle
Wohnzimmer:mit Sitzecke, Flachbild-TV, und Essplatz Schlafzimmer:1 Schlafzimmer mit Doppelbett (1,80 x 2 m), 1 Schlafraum mit Etagenbett Bad:Duschbad mit WC (neues Duschbad) Internetzugang:WLAN Dies ist eine freiwillige Leistung. Es besteht kein Rechtsanspruch Direktlink zum Objekt

Beschreibung

Moderne, helle Dreiraumwohnung im 19. Stock mit möblierten Balkon mit Markise. Hier und aus dem Wohnzimmer genießen Sie zu jeder Tageszeit den atemberaubenden Ausblick auf Büsum, die Nordsee und die Meldorfer Bucht.
Alle Räume sind hell und freundlich und mit persönlicher Note liebevoll ausgestattet und dekoriert. Mit ihrem Laminatboden und der Bettausstattung (Kopfkissen, Bettdecke und Matratzen) ist die Wohnung allergikerfreundlich gestaltet.
Das Elternschlafzimmer ist mit einem Doppelbett eingerichtet. Für die KInder befindet sich im 2. Schlafzimmer ein Etagenbett.

Das Bad ist hell gefliest mit einer Duschkabine, Waschbecken und WC.

Die Küche ist vollausgestattet, so dass Sie sich gut selbst versorgen können.

W-Lan vorhanden. Dies ist eine freiwillige Leistung. Es besteht kein Rechtsanspruch.

Zusätzlich zum Appartement steht Ihnen noch eine Dachterrasse zur Verfügung, von der aus Sie einen Panoramablick über Büsum und Meer haben.
Nichtraucherwohnung. Haustiere sind nicht gestattet. Das Appartement ist für 4 Personen geeignet.
Ein Pkw-Abstellplatz gehört zur Wohnung.

Ferienwohnung Nr. 95

Details

Wohnfläche:52 m² / 2 Räume Etage/Geschoss:9 (Fahrstuhl vorhanden) Anzahl Personen:für bis zu 4 Personen Zustellbett möglich:nein Komfort:Gehobene Ausstattung Küche:ja (separate Küche)
Mikrowelle und Geschirrspüler, Kühlschrank mit Eisfach
Wohnzimmer:Schlafsofa, Flachbild-TV, Essplatz, kleine Stereoanlage Schlafzimmer:großes Boxspringbett ( H: 0,75 x B:1,8 x L: 2) und Kleiderschrank Bad:Vollbad mit WC (Wannenbad mit WC) Internetzugang:WLAN Dies ist eine freiwillige Leistung. Es besteht kein Rechtsanspruch Direktlink zum Objekt

Beschreibung

Die komfortable 2-Raumnwohnung im 9. Stock bietet Platz für 2 - 4 Personen.

Das Wohnzimmer ist liebevoll eingerichtet mit einer Schlafcouch, einem Flat-TV, Stereoanlage, Accessoires im 70er Jahre Retrostil, sowie ein Essplatz direkt am Fenster mit Meerblick.

Das Schlafzimmer bietet einen Platz der Ruhe mit seinem großen Boxspringbett (Maße 0,75 x 1,8 x 2 m).

Die Küche ist modern mit Geschirrspüler, Mikrowelle, Backofen und Cerankochfeld.

Das Bad ist ausgestattet mit einer Badewanne, WC und Waschbecken.

Auf dem Balkon können Sie die Sonne im Meer untergehen sehen oder einfach nur relaxen.
Pkw-Stellplatz und Fahrstuhl vorhanden.

Bitte haben Sie Verständnis dafür, dass dies eine Nichtraucherwohnung ist. Die Saisonvermietung mit Haustier ist laut Hausordnung untersagt.

Ferienwohnung Nr. 47

Details

Wohnfläche:40 m² / 1 Räume Etage/Geschoss:4 (Fahrstuhl vorhanden) Anzahl Personen:für bis zu 2 Personen Zustellbett möglich:nein Komfort:Gehobene Ausstattung Küche:ja (separate Küche)
Ceran-Kochfeld, Backofen, Mikrowelle, Kühlschrank mit Eisfach
Wohnzimmer:Wohn- Schlafraum, Couch mit Schlaffunktion (Matratze und Lattenrost) Liegefläche 1,60 x 2,00 m Bad:Duschbad mit WC (Duschbad) Internetzugang:WLAN Dies ist eine freiwillige Leistung. Es besteht kein Rechtsanspruch Direktlink zum Objekt

Beschreibung

Unsere komfortable Ferienwohnung befindet sich im 4. Stock des Hochhauses.

Sie bietet auf ca. 40 qm genügend Platz für 2 Personen. Der helle freundliche kombinierte Wohn-/ Schlafraum ist mit einem Sofa mit Schlaffunktion mit Matratze und Lattenrost eingerichtet. Die Liegeffäche ist 1,60 m x 2,00 m. Flachbildfernseher, und Essplatz mit Blick zur Familienlagune.
Die Küche ist mit allen nötigen Haushaltsutensilien ausgestattet. Das Bad ist funktional, mit Duschkabine, Waschbecken und WC.

Genießen Sie auf dem Balkon die traumhaften Sonnenuntergänge.

Zur Anlage gehören eine Pkw-Stellplatz und ein Fahrstuhl, sowie ein Gemeinschaftsfahrradkeller.

W-Lan vorhanden. Dies ist eine freiwillige Leistung. Es besteht kein Rechtsanspruch.

Bitte haben Sie Verständnis dafür, dass dies eine Nichtraucherwohnung ist. Die Saisonvermietung mit Haustier ist laut Hausordnung untersagt.





Ferienwohnung Nr. 148 Leben

Details

Wohnfläche:40 m² / 1 Räume Etage/Geschoss:14 (Fahrstuhl vorhanden) Anzahl Personen:für bis zu 2 Personen Zustellbett möglich:nein Komfort:Mittlere Ausstattung Küche:ja (separate Küche )
4-Zonen Cerankochfeld, Backofen und Mikrowelle, Kühlschrank mit Eisfach
Wohnzimmer:Wohn-, Schlafraum mit feststehenden Doppelbett für 2 Personen, Flachbild-TV, Essplatz Bad:Vollbad mit WC (Wannenbad) Internetzugang:W-LAN Dies ist eine freiwillige Leistung. Es besteht kein Rechtsanspruch Direktlink zum Objekt

Beschreibung

Erleben Sie unvergessliche und beeindruckende Sonnenuntergänge
Unsere gemütliche 1-Raum-Wohnung im 14. Stock bietet ausreichend Platz für zwei Personen.

Der kombinierte Wohn- und Schlafbereich ist mit einem komfortablen Doppelbett, einem Fernsehsessel mit Fußhocker, einem Flachbildfernseher sowie einem Essplatz mit herrlichem Blick auf die Lagune ausgestattet.

Die Küche verfügt über alle notwendigen Haushaltsgeräte, einschließlich Cerankochfeld, Backofen und Mikrowelle, sodass es Ihnen an nichts fehlt.

Das Badezimmer ist praktisch gestaltet und bietet eine Badewanne mit Duschvorrichtung sowie eine Toilette.

Abends können Sie auf dem Balkon entspannen, den Tag Revue passieren lassen und dabei spektakuläre Sonnenuntergänge genießen.
Das Gebäude hat einen Fahrstuhl, einen Pkw-Stellplatz und einen allgemeinen Fahrradabstellraum.

W-Lan vorhanden. Dies ist eine freiwillige Leistung. Es besteht kein Rechtsanspruch.

Bitte beachten Sie, dass es sich hierbei um eine Nichtraucherwohnung handelt. Laut Hausordnung ist die Mitnahme von Haustieren während der Saisonvermietung nicht gestattet.

Bettwäsche und Handtücher können bei uns für 23 Euro pro Person gemietet werden. Der gleiche Betrag fällt auch bei einem Wechsel an.


Ferienwohnung Nr. 175

Details

Wohnfläche:55 m² / 2 Räume Etage/Geschoss:17 (Fahrstuhl vorhanden) Anzahl Personen:für bis zu 4 Personen Zustellbett möglich:nein Komfort:Gehobene Ausstattung Küche:ja (separate Küche)
4-Zonen Cerankochfeld, Backofen, Mikrowelle, Kühlschrank mit Gefrierfach
Wohnzimmer:3-Sitzer und zwei Sessel aus Echtleder, Esstisch mit 4 Stühlen, Schrankbett für 2 Personen (160x200 cm), Flachbild-TV Schlafzimmer:großes Doppelbett (180x200 cm), Kleiderschrank, Flachbild-TV Bad:Duschbad (Helles Bad mit Duschkabine, Waschtisch, WC und Waschmaschine) Internetzugang:WLAN Dies ist eine freiwillige Leistung. Es besteht kein Rechtsanspruch Direktlink zum Objekt

Beschreibung

Unsere liebevoll eingerichtete ca. 55 qm große Wohnung liegt in unmittelbarer Strandlage direkt an der Familienlagune im 17. Stock des Büsumer Hochhauses.

Besonders ist das große Wohnzimmer mit einmaligem Blick bis hin zur Elbmündung im Süden.

Auch vom separaten Schlafzimmer aus haben Sie eine traumhafte Aussicht bis hin zur Halbinsel Eiderstedt.

Im Wohn- und Esszimmer gibt es bequeme Echtledermöbel, einen großen Esstisch und vieles andere für einen schönen Urlaub.

Auf dem möblierten Balkon können Sie entspannen, den Gezeitenwechsel beobachten und wunderschöne Sonnenuntergänge erleben.

Zudem gibt es eine separate Dachterrasse und einen gemeinschaftlichen Tischtennisraum zur freien Benutzung.

Im Schlafzimmer erwartet Sie ein hochwertiges Boxspringbett (1,80m x 2,00m) und ein 2. Fernseher.
Im Wohnzimmer befindet sich ein komfortables Schrankbett (1,60m x 2,00m).
Die Küche ist mit allem notwendigen ausgestattet und verfügt über einen großen Kühlschrank mit Gefrierfach, Mikrowelle, Herd mit Ceranfeld und einen Backofen.

Das Bad ist hell und freundlich mit einer Duschkabine, einem Waschtisch mit genügend Stauraum, WC und einer Waschmaschine.

W-Lan vorhanden. Dies ist eine freiwillige Leistung. Es besteht kein Rechtsanspruch.

Bitte haben Sie Verständnis dafür, dass dies eine Nichtraucherwohnung ist. Die Saisonvermietung mit Haustier ist laut Hausordnung untersagt.

PKW Stellplatz vorhanden.

Wir wünschen Ihnen einen schönen Urlaub!

Ferienwohnung "Traumblick" Nr. 172

Details

Wohnfläche:56 m² / 2 Räume Etage/Geschoss:17 (Fahrstuhl vorhanden) Anzahl Personen:für bis zu 3 Personen Zustellbett möglich:nein Komfort:Gehobene Ausstattung Küche:ja (separate Küche)
Kaffevollautomat, 3-Plattenherd, Kühlschrank mit Eisfach
Wohnzimmer:Schlafsofa, Flachbild-TV, Essplatz Schlafzimmer:Doppelbett ( 180 x 200 cm), Kleiderschrank Bad:Duschbad mit WC (Duschbad mit Fön und Kosmetikspiegel) Direktlink zum Objekt

Beschreibung

Genießen Sie erholsame Tage in unserer modernen und liebevoll eingerichteten Ferienwohnung.

Die 2-Raumwohnung ist hell und freundlich gestaltet mit viel Liebe zum Detail.

Das lichtdurchflutete Wohnzimmer ist mit hellen Möbeln und passenden Accessoires ausgestattet. Entspannen Sie auf dem gemütlichem Sofa (Schlafsofa) bei einem guten Film oder genießen Sie ein ausgewogenes Frühstück mit Blick auf das Meer.

Lassen Sie den Tag auf dem Balkon in Richtung Süden Revue passieren.

Das Schlafzimmer ist ebenfalls hell und bietet einen Platz zum Träumen.

Die Küche bietet alles was Sie zum selbstversorgen benötigen.

Das Bad ist ausgestattet mit einer Dusche, Waschtisch und WC, sowie ein Fön und genügend Stauraum für Ihre Kosmetika.

Zum Haus gehört ein PKW-Stellplatz, ein Fahrstuhl und ein allgemeiner Fahrradabstellraum.

Bitte haben Sie Verständnis dafür, dass dies eine Nichtraucherwohnung ist. Die Saisonvermietung mit Haustier ist laut Hausordnung untersagt.




Ferienwohnung Meeresbrandung

Details

Wohnfläche:56 m² / 2 Räume Etage/Geschoss:5 (Fahrstuhl vorhanden) Anzahl Personen:für bis zu 3 Personen Zustellbett möglich:nein Komfort:Gehobene Ausstattung Küche:ja (separte Küche)
4-Zonen Cerankochfeld, Backofen, Geschirrspüler, Mikrowelle, Kühlschrank mit Eisfach
Wohnzimmer:Schlafsofa, Flachbild-TV, Essplatz Schlafzimmer:Doppelbett und Kleiderschrank Bad:Duschbad mit WC (Duschbad) Direktlink zum Objekt

Beschreibung

Unsere moderne und komfortable 2-Raumferienwohnung befindet sich im 5. OG und bietet genügend Platz für bis zu 3 Personen.
Sie ist genau das Richtige für die, die nicht ganz so hoch hinaus möchten.
Auf rund 56 qm können Sie sich frei entfalten und die Seele baumeln lassen.
Das helle und freundliche Wohnzimmer ist mit einem Sofa, welches auch als Schlafmöglichkeit genutzt werden kann, einem Schwingstuhl und einem Flachbild-TV ausgestattet.

Genießen Sie ein ausgewogenes Frühstück am Esstisch mit direktem Blick auf die Nordsee.
Das Schlafzimmer bietet eine kleine Traum-Oase mit einem Doppelbett und Kleiderschrank.
Das Bad ist hell und ist mit einer Duschkabine, einem Waschbecken, sowie ein WC ausgestattet.
Bereiten Sie in der vollausgestatteten Küche liebevoll Ihre Mahlzeiten zu.

Bitte rauchen Sie nicht in der Wohnung. Ihre Nachmieter werden es Ihnen danken. Auf dem Balkon dürfen Sie selbstverständlich rauchen.
Die Saisonvermietung mit Haustier ist laut Hausordnung untersagt.
Pkw-Stellplatz befindet sich neben dem Haus. Fahrstuhl und Gemeinschaftsfahrradraum vorhanden.





Ferienwohnung Nr. 185

Details

Wohnfläche:52 m² / 2 Räume Etage/Geschoss:18 (Fahrstuhl vorhanden) Anzahl Personen:für bis zu 3 Personen Zustellbett möglich:nein Komfort:Gehobene Ausstattung Küche:ja (Separate Küche)
Vollausgestattet mit 4-Zonen Cerankochfeld, Umluftbackofen, Mikrowelle, Geschirrspüler, Kühlschrank mit Eisfach
Wohnzimmer:3-Sitzer, Sessel, Einzelbett, Flachbild-TV, DVD-Player und Essplatz Schlafzimmer:Doppelbett und Kleiderschrank Bad:Duschbad mit WC (Neues Duschbad mit Waschmaschine) Internetzugang:W-Lan und Festnetzanschluss vorhanden. Dies ist eine freiwillige Leistung. Es besteht kein Rechtsanspruch Besonderheiten:Garage zum Abstellen der Fahrräder Direktlink zum Objekt

Beschreibung

Herzlich Willkommen in unserer hellen und liebevoll eingerichteten Ferienwohnung. Auf rund 52 qm finden bis zu 3 Personen genügend Platz.

Das Wohnzimmer ist modern in dezenten Farben gestaltet. Zur Ausstattung gehören ein Sofa, ein Sessel, ein Flachbild-TV und DVD-Player, ein Essplatz mit Meerblick und für die 3. Person ein feststehendes Bett (90x200 cm) und ein kleiner Kleiderschrank. Hier lässt es sich an regnerischen Tagen gemütlich entspannen.
Auch das Schlafzimmer lädt Sie zum Erholen ein. Ein Doppelbett (180x200 cm) bietet Ihnen einen erholsamen Schlaf. Für Ihre Kleidung gibt es einen geräumigen Kleiderschrank.
Das Bad ist hell und modern mit einer Runddusche, Waschtisch und WC, sowie genügend Stauraum für Ihre Kosmetika ausgestattet. Eine kleine Waschmaschine ist ebenfalls vorhanden.
Die separate Küche ist voll ausgestattet und lässt keine Wünsche offen. Von einem 4-Zonen Cerankochfeld bis hin zum Geschirrspüler ist alles vorhanden.
Genießen Sie die traumhaften Sonnenuntergänge auf dem Balkon oder beobachten Sie die vorbeifahrenden Schiffe.
Der Balkon ist mit Gartenmöbeln sowie einer Markise ausgestattet.
W-Lan und Festnetzanschluss (kostenfreie Telefonate in alle deutschen Netze, fest und mobil) vorhanden. Dies ist eine freiwillige Leistung. Es besteht kein Rechtsanspruch.
Bitte haben Sie Verständnis dafür, dass dies eine Nichtraucherwohnung ist. Die Saisonvermietung mit Haustier ist laut Hausordnung untersagt.
Auf dem Balkon ist das Rauchen erlaubt.
Pkw-Stellplatz befindet sich vor dem Haus. Zur Wohnung gehört eine eigene Garage, in der Sie Ihre Fahrräder abstellen können. Garage, drittes Tor vom Eingang aus.





Ferienwohnung Küstenperle

Details

Wohnfläche:40 m² / 1 Räume Etage/Geschoss:16 (Fahrstuhl vorhanden) Anzahl Personen:für bis zu 2 Personen Zustellbett möglich:nein Komfort:Gehobene Ausstattung Küche:ja (separate Küche)
4-Zonen Cerankochfeld, Backofen, Kühlschrank mit Eisfach,
Wohnzimmer:Boxspringbett, Essplatz, Kleiderschrank, Flachbild-TV, 2 Sessel Bad:Vollbad mit WC (Wannenbad mit Duschvorrichtung) Direktlink zum Objekt

Beschreibung

Herzlich Willkommen in der Ferienwohnung "Küstenperle". Erleben Sie unvergessliche Tage in unserer komfortablen Einraumwohnung im 16. Stock.
Die Wohnung ist modern und mit viel Liebe zum Detail eingerichtet.
Der Wohn-/Schlafraum ist mit hochwertigen Möbeln ausgestattet. Ein großes Boxspringbett (180x200 cm) bietet genügend Platz zum Erholen. Genießen Sie einen traumhaften Ausblick auf die Nordsee während des Frühstücks oder Abendessen.
Die separate Küche bietet Ihnen alles was Sie zum Kochen benötigen. Genießen Sie zum Frühstück oder zum Nachmittagskaffee frischgemahlenen Kaffee aus dem Kaffeevollautomaten.
Das Bad ist gepflegt mit einer Badewanne mit Duschvorichtung, Waschtisch und WC.
Auf dem Balkon können Sie am Abend den traumhaften Sonnenuntergang beobachten oder lauschen Sie einfach nur den Wellen des Meeres bei einem guten Glas Wein.
Pkw-Stellplatz befindet sich direkt am Haus. Ein Fahrstuhl ist selbstverständlich auch vorhanden.
Bitte haben Sie Verständnis dafür, dass dies eine Nichtraucherwohnung ist und eine Vermietung mit Haustieren nicht gestattet ist.
Ankommen und wohlfühlen fällt Ihnen hier bestimmt nicht schwer.



Ferienwohnung MeerZeit, 3. Stock

Details

Wohnfläche:40 m² / 1 Räume Etage/Geschoss:3 (Fahrstuhl vorhanden) Anzahl Personen:für bis zu 2 Personen Zustellbett möglich:nein Komfort:Gehobene Ausstattung Küche:ja (offene Küche)
Geschirrspüler, 4-Zonen Cerankochfeld, Backofen mit Mikrowellenfunktion, Kühlschrank mit Gefriefach
Wohnzimmer:Wohn-/Schlafraum kombiniert; feststehendes Bett (160x200 cm), Sofa (mit Schlaffunktion 160x 200 cm), Flachbild-TV Bad:Duschbad mit WC (Duschbad mit Regendusche, Waschtrockner, Föhn, Kosmetikspiegel) Internetzugang:W-Lan vorhanden. Dies ist eine freiwillige Leistung. Es besteht kein Rechtsanspruch Direktlink zum Objekt

Beschreibung

Genießen Sie ein paar unbeschwerte und erholsame Tage bei uns in Büsum und lassen Sie sich den frischen Nordseewind um die Nase wehen bei einem gemütlichen Spaziergang am Wasser.

Den idealen Ausgangspunkt dafür bietet unsere moderne Einraumwohnung im Hochhaus.
Sie ist modern und mit viel Liebe zum Detail eingerichtet.

Der offene Wohn-/Schlafbereich mit feststehendem Bett ist der perfekte Erholungsplatz für Sie. Egal ob vom Sofa oder vom Bett, Sie können abends gemütlich einen Film gucken oder Netflix (mit eigenem Account) streamen oder Sie genießen einfach den traumhaften Ausblick auf das Meer und die Perlebucht.

Der Samsung TV kann als zusätzlicher Bildschirm für den eigenen Laptop genutzt werden.
Die offene Küche ist mit allem ausgestattet was Sie benötigen, inkl. Geschirrspüler und Waschtrockner.

Das Bad ist ausgestattet mit einer Rainshower-Dusche, Waschbecken und WC.
Auf dem Balkon können Sie die Sonne genießen und dabei gemütlich ein Buch lesen.

Bitte haben Sie Verständnis dafür, das dies eine Nichtraucherwohnung ist. Auf dem Balkon dürfen Sie allerdings rauchen.

Die Saisonvermietung mit Haustier ist laut Hausordnung untersagt.
Pkw-Stellplatz und Fahrradständer befindet sich neben dem Haus. Fahrstuhl und Gemeinschaftsfahrradraum vorhanden.
Bettwäsche und Handtücher können Sie zum Preis von 23 Euro/Pers. von uns mieten (bei Wechsel zahlen Sie die gleiche Gebühr).

Ferienwohnung Nr. 32 M.Weitzel

Details

Wohnfläche:50 m² / 2 Räume Etage/Geschoss:3 (Fahrstuhl vorhanden) Anzahl Personen:für bis zu 3 Personen Zustellbett möglich:nein Komfort:Gehobene Ausstattung Küche:ja (separte Küche)
4-Zonen Cerankochfeld, Backofen, Geschirrspüler, Kühlschrank
Wohnzimmer:Wohnzimmer mit Schlafcouch, Flachbild-Kabel-TV, Eßplatz Schlafzimmer:Doppelbett und Kleiderschrank Bad:Duschbad mit WC (Bad mit Dusche und WC) Internetzugang:W-Lan vorhanden. Dies ist eine freiwillge Leistung. Es besteht kein Rechtsanspruch Direktlink zum Objekt

Beschreibung

Unsere komfortable Zweiraumwohnung liegt im 3.Stock hat eine Größe von 50 qm und bietet Platz für max. 3 Personen.

Auf dem Balkon mit Meerblick können Sie so richtig die Seele baumeln lassen.

Zur Ausstattung gehören Wohnzimmer mit Schlafcouch, Flachbildfernseher mit Kabelanschluss und Essplatz. Badezimmer mit Dusche und WC.

Die separate Küche verfügt über eine komplette Ausstattung.

Zum Hause gehören Fahrstuhl, PKW-Stellplatz, Tischtennisraum und ein allgemeiner Fahrradabstellraum.

Nicht zu vergessen, der an der Schleswig-Holsteinischen Nordseeküste absolut einmalige Rundum-Ausblick von der Dachterrasse des 21. Stockwerks des Hochhauses.

Bitte haben Sie Verständnis dafür, dass dies eine Nichtraucherwohnung ist. Die Saisonvermietung mit Haustier ist laut Hausordnung untersagt.

W-Lan vorhanden. Dies ist eine freiwillige Leistung. Es besteht kein Rechtsanspruch.

Bettwäsche und Handtücher können Sie zum Preis von 23 Euro/Pers. von uns mieten (bei Wechsel zahlen Sie die gleiche Gebühr).